רובע צפוני הרצליה (תמל 3006)

חברת‭ ‬ישראל‭ ‬גרופ‭, ‬המתמחה‭ ‬בקרקעות‭ ‬חקלאיות‭,  ‬מזמינה‭ ‬אתכם‭ ‬לקחת‭ ‬חלק‭ ‬בהזדמנות‭ ‬נדל"נית‭ ‬המניבה‭ ‬תשואות‭ ‬והשבחה‭ ‬של‭ ‬הקרקע‭ ‬ברובע‭ ‬הצפוני‭ ‬של‭ ‬הרצליה‭ - ‬תמל‭ ‬3006‭.‬

  • כ‮–‬11,500‭ ‬יח"ד
  • שטחי‭ ‬מסחר‭ ‬ותעסוקה
  • הקמת‭ ‬פארק‭ ‬וחיבורו‭ ‬לרצף‭ ‬של‭ ‬פארק‭ ‬הרצליה
  • תחנות‭ ‬של‭ ‬הרכבת‭ ‬הקלה
  • קרקע‭ ‬בבעלות‭ ‬פרטית

‭*‬התמונות‭ ‬להמחשה‭ ‬בלבד‭ * ‬הקרקע‭ ‬החקלאית‭ ‬מיועדת‭ ‬לפיתוח‭ ‬מגורים‭, ‬ואינה‭ ‬זמינה‭ ‬לבנייה‭ ‬מיידית

היקפי הבניה המוצעת: סך יחידות הדיור בתחום התוכנית כ־10,200 יח״ד ובנוסף 600 יחידות דיור מוגן. עוד כוללת התוכנית כ־436,000 מ״ר בנוי על קרקעי למסחר ולתעסוקה. הצפיפות הממוצעת בתחום התוכנית כ־36.6 יח״ד / ד׳ נטו.

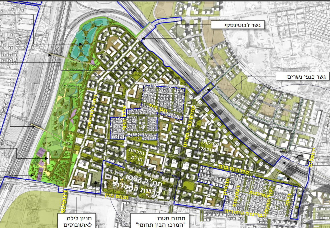
תכנית "הרובע הצפוני הרצליה" הינה מסגרת תכנונית להקמת רובע עירוני חדש בצפון הרצליה וכפר שמריהו, ובתחום שדה התעופה של הרצליה העומד בפני פינוי.
שטח התכנית הינו כ-2,200 דונם והיא גובלת ברחוב הבריגדה היהודית מדרום, כביש 531 מצפון, שכונת יד התשעה וכפר שמריהו במערב.
התכנית כוללת את המרחב העוטף את השכונות הקיימות גן רש"ל ונחלת עדה, ואת שטח התוכנית הקיימת "קריית המסלול, שדה התעופה המתפנה" שהוצגה לאחרונה.

עקרונות התכנון המוצעים ברובע הצפוני הינם:

  1. המשך טבעי ורציף לעיר הקיימת: הרובע מתוכנן כרשת רחובות עירוניים שמתאימים למרקמים הוותיקים של הרצליה והרחובות הקיימים בשכונות נחלת עדה וגן רש"ל.
    הרובע יקשר צפונה לרעננה ומערבה לכפר שמריהו באמצעות גשרים מעל כביש 531 ונתיבי אילון.
  2. תחבורה רגלית בעדיפות ראשונה: הרחובות מתוכננים בצורה שתעודד הליכה ורכיבה על אופניים, וינתנו עדיפות לתחבורה ציבורית ברחובות הראשיים.
    ישנן שתי שדרות הולכי־רגל רחבות ורשת שבילי הולכי־רגל שתעשיר את המרחב הציבורי.
  3. פיתוח תחבורה ציבורית: הרובע מתבסס על אמצעי תחבורה ציבורית עתירי נוסעים כגון תחנת הרכבת רעננה מערב, תחנות המטרו המתוכננות ונתיבי המונית לעיר" בשדרות ירושלים. התכנון מתבצע במתכונת פיתוח מוטה תחבורה ציבורית עם בנייה צפופה ומעורבת שימושים סביב תחנות התחבורה הציבורית, ובניה מרקמית נמוכה בשכונות המרוחקות יותר.
  4. שילוב במערכת הפארקים העירוניים: הרובע כולל פארק רחב ידיים בדופן המערבי, המתקשר למערכת הפארקים העירונים מצפון (אזור נופש מטרופוליני רעננה המתוכנן) ומדרום (פארק הרצליה הקיים). הפארק מאפשר הסטת קו מתח עליון, הקמת תחנת שאיבה לביוב וקידוח נוסף למי תהום.
  5. שימור נכסי מורשת: התוכנית כוללת שימור של נכסי מורשת נופיים ובנויים כמו חורשות אקליפטוסים, שדרות ברושים, מגדלי מים ועוד.
  6. צפיפות הבניה המוצעת: בתחום התכנית מתוכננות כ-10,200 יחידות דיור ו-600 יחידות דיור מוגן.
    כמו כן, תוכננו כ-436,000 מטרים רבועים למסחר ותעסוקה. הצפיפות הממוצעת בתחום התכנית היא כ-36.6 יחידות לדונם.

בתחום כפר שמריהו ממערב לכביש 20 יתוכננו העקרונות הבאים:

  1. ניצול הקרקע שהתפנתה בעקבות הסטת המסילה מזרחה במסגרת פרויקט נתיבי איילון לטובת הרחבת היישוב.
  2. קביעת תאי שטח בייעוד דיור מוגן בהיקף 600 יחידות לטובת אוכלוסיה בוגרת, וגם שטחים לצרכי ציבור.
  3. שמירה והגנה על שלולית החורף הקיימת כנכס טבע ערכי.
  4. חיבור כפר שמריהו בכללו והבינוי החדש בפרט לפארק העירוני ולרובע הצפוני הרצליה ממזרח לכביש מס' 20, באמצעות קביעת שני גשרים להולכי רגל ולרוכבי אופניים.
  5. פיתוח פארק ליניארי לאורך נחל רשפון ותוואי המסילה הישן.

‭*‬התמונות‭ ‬להמחשה‭ ‬בלבד‭ * ‬הקרקע‭ ‬החקלאית‭ ‬מיועדת‭ ‬לפיתוח‭ ‬מגורים‭, ‬ואינה‭ ‬זמינה‭ ‬לבנייה‭ ‬מיידית

רובע צפוני הרצליה (תמל 3006)

השקעה חכמה בקרקע חקלאית עם פוטנציאל לתשואה גבוהה – הרובע הצפוני הרצליה, תמל/3006

חברת ישראל גרופ, המתמחה באיתור ושיווק קרקעות חקלאיות עם פוטנציאל השבחה, מזמינה אתכם לקחת חלק באחת מההזדמנויות הנדל"ניות המשמעותיות ביותר במרכז הארץ – הרובע הצפוני של הרצליה.

 מה כוללת התוכנית החדשה?

  • כ־14,900 יחידות דיור מתוכננות, כולל 600 יחידות לדיור מוגן
  • כ־500,000 מ"ר למסחר ותעסוקה
  • הקמת פארק עירוני נרחב המחובר לרצף הפארקים העירוניים מצפון (רעננה) ומדרום (הרצליה)
  • תחנות מטרו ורכבת קלה מתוכננות, חיבור ל"מהיר לעיר"
  • גישה נוחה מכביש 531 וכביש 20
  • קרקע בבעלות פרטית | התוכנית כוללת הוראות תכנוניות ברמה מפורטת

‭*‬התמונות‭ ‬להמחשה‭ ‬בלבד‭ * ‬הקרקע‭ ‬החקלאית‭ ‬מיועדת‭ ‬לפיתוח‭ ‬מגורים‭, ‬ואינה‭ ‬זמינה‭ ‬לבנייה‭ ‬מיידית

📍 מיקום אסטרטגי הרובע מתוכנן בצפון הרצליה ובתחום שדה התעופה המתפנה, וגובל בכפר שמריהו ממערב, רחוב הבריגדה היהודית מדרום וכביש 531 מצפון. השטח משתרע על כ־2,705 דונם וכולל את השכונות הקיימות גן רש"ל, נחלת עדה, וחלק מ"קריית המסלול שדה התעופה".

עקרונות תכנון חדשניים

מרחב עירוני רציף ומודרני המחובר לשכונות הוותיקות

עדיפות להולכי רגל ורוכבי אופניים, עם שדרות רחבות ומערכת שבילים

פיתוח מוטה תחבורה ציבורית עם בינוי גבוה סביב התחנות

שימור נכסי מורשת – חורשות, שדרות עצים, מגדלי מים ועוד

שטחי ציבור פתוחים, מבני ציבור, תעסוקה, תחנות תחבורה ותשתיות

כפר שמריהו – פיתוח מותאם לאופי המקום

תוספת של 600 יח"ד לדיור מוגן

חיבור באמצעות גשרים לרובע הרצליה

שימור שלולית החורף ופיתוח פארק ליניארי לאורך נחל רשפון